Capannone

Zona: Settecamini Setteville
Image
Image
Image
Image
Image
Image
Image
Image
5000
Coperti
mq
9000
Scoperti
mq
10
Vani
Catastali
1
scoperto
auto
4
Bagni
Servizi
G
Classe
Isolamento
  • Scheda :
    01AF2378/A-940
  • Contratto:
    AFFITTO
  • Tipologia:
    Capannone
  • Area Verde:
    9000 mq
  • Zona:
    Settecamini
30.000 €
al mese
  • Indirizzo:
    ROMA (RM)
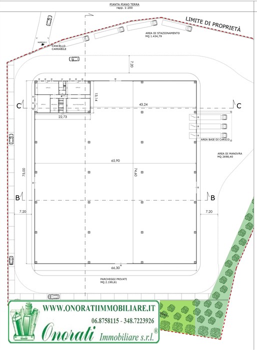
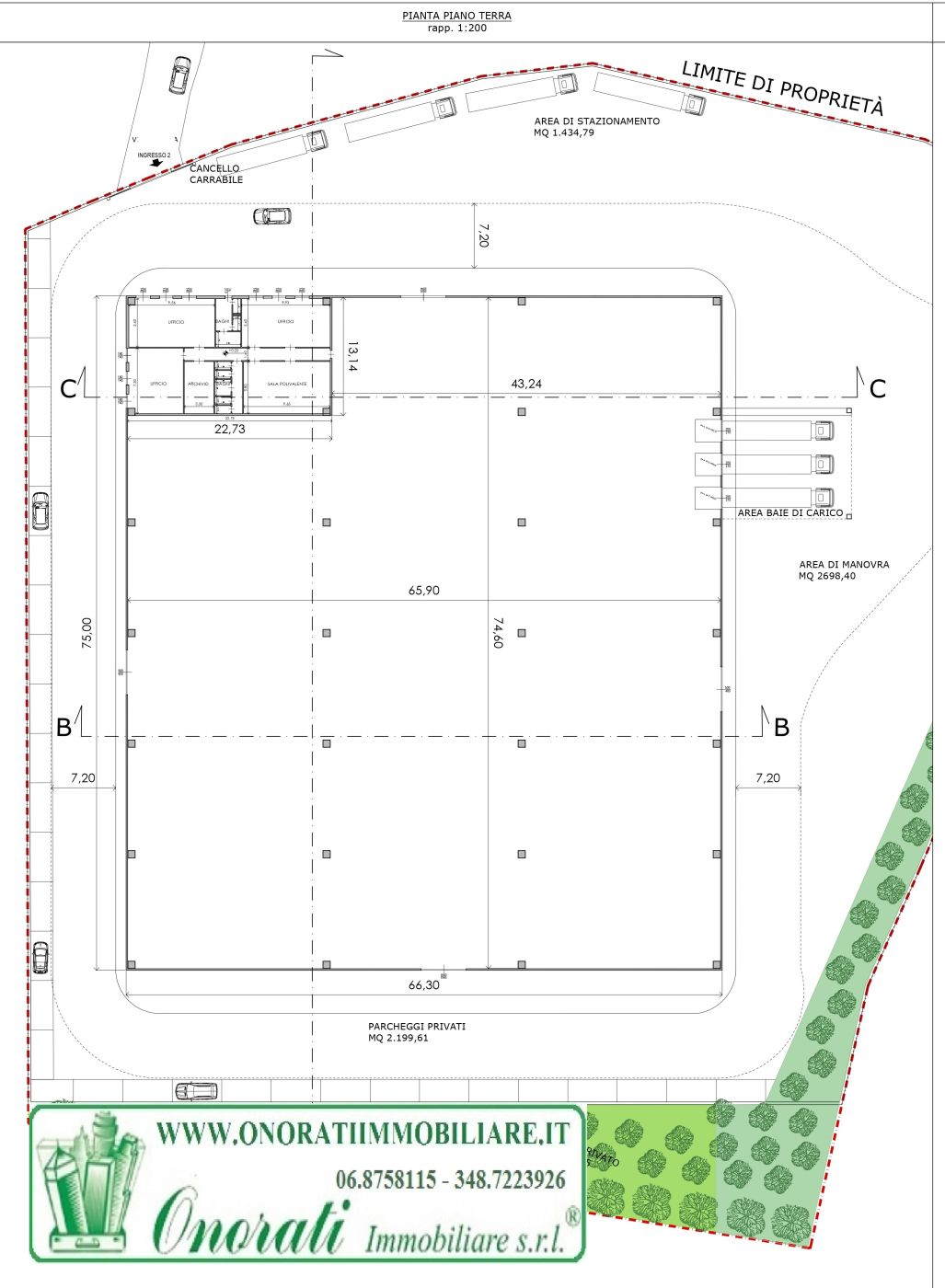
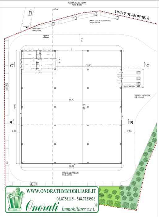
MQ 5.000 ROMA, TIBURTINA ZONA INDUSTRIALE SETTECAMINI VICINANZE GRA,Rif.A-940. Proponiamo in locazione con formula Rent to Buy capannone industriale in costruzione di mq 5000 circa, piani di cari da valutare, in zona industriale a soli 2 km dal GRA. L’immobile, unico livello, avrà un’altezza interna di mt 9,00 altezza ingresso mt 5. Completa la proprietà un ampio piazzale di circa mq 9.000. Da valutare in corso di costruzione le rifiniture, l’area uffici e impianti. Vendita ad € 6.500.000,00 oltre IVA con formula Rent to Buy con canone per 24 mesi di € 30.000,00/ mese. SE ANCHE TU VUOI VENDERE E/O AFFITTARE IL TUO IMMOBILE, CONTATTACI PER UNA VALUTAZIONE GRATUITA AL NUMERO 06/8758115 OPPURE INVIA UNA EMAIL A info@onoratiimmobiliare.it

Planimetria

Contatta Agenzia

Onoratiimmobiliare
Onoratiimmobiliare
Via Cavour 71, GUIDONIA MONTECELIO - RM - 00012 - Lazio
 
Tel: 068758115

Onorati Immobiliare S.r.l. usa i cookies per garantire una migliore esperienza di navigazione. Continuando a navigare o selezionando un qualsiasi elemento del sito accetti l'utilizzo dei cookies necessari. Per maggiori informazioni clicca qui. |OK| |INFORMATIVA PRIVACY|